Menu

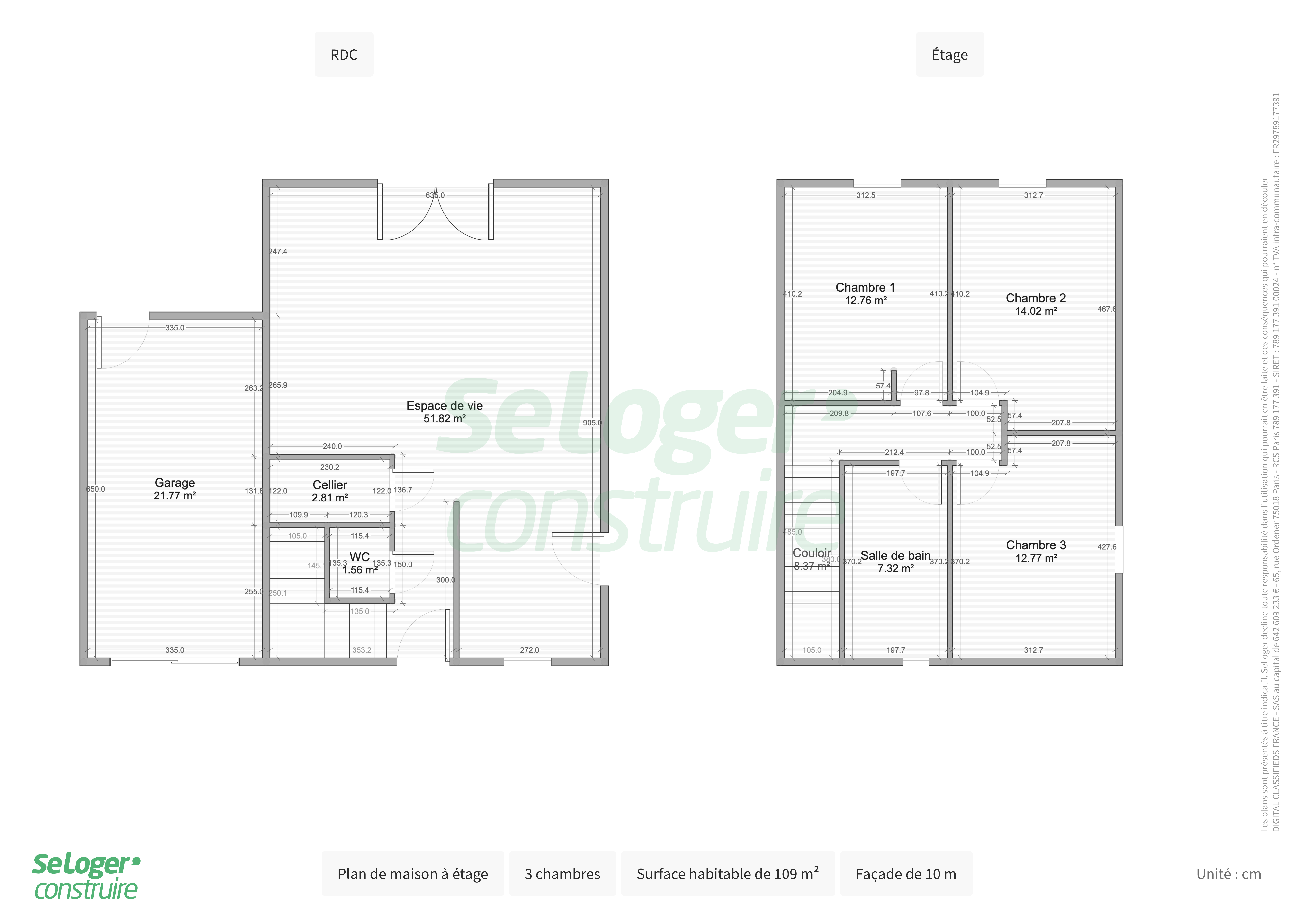
Plans de maison à étage

Vous souhaitez faire construire une maison et vous orienter vers la construction d'une maison à étage. Le site SeLoger construire vous accompagne pour sélectionner la maison idéale. Une vaste sélection de plans de maison à étage gratuits vous est proposée : plan de maison à étage 4 chambres, avec ou sans garage… Pour chacune d'elles, SeLoger construire vous met en relation avec les constructeurs de maisons à même de concrétiser votre projet. Voici quelques conseils pour vous aider à arrêter définitivement votre choix.

Plans de maison à étage
    Nous répondons à toutes vos questions
    Pourquoi choisir la construction d'une maison à étage ?
    Quels sont les inconvénients d'une maison à étage ?
    Comment faire son choix parmi les plans de maison à étage ?
    Pourquoi choisir la construction d'une maison à étage ?

    Le choix d'un type de maison est primordial pour sa future habitation. Il doit être adapté à la configuration du terrain et à la configuration familiale. On ne choisit pas une maison à étage au hasard. Il faut que son choix s'appuie sur un certain nombre d'éléments à ne pas négliger.

    Choisir de faire construire une maison à étage permet une optimisation de la surface, notamment si le terrain est étroit et de petite taille. Également, construire une maison sur deux niveaux rend possible la séparation entre les espaces de vie communs et privatifs. On vous explique pourquoi ces deux avantages sont plébiscités par les acquéreurs, en particulier les familles.

    La maison à étage est adaptée pour les petits terrains

    La rareté et le coût élevé du foncier entraînent la multiplication des ventes de terrain de petite superficie, surtout en zone tendue. La construction d'une maison à étage est particulièrement recommandée pour les projets de construction sur des terrains d'une superficie inférieure à 500 m2. Elle permet de doubler la surface habitable de la maison sans trop empiéter sur le terrain et donc de conserver un espace extérieur.

    La maison à étage, la maison idéale des famille

    Le plan de maison à étage s'est imposé comme le modèle favori des familles. Il permet à chaque membre de la famille de bénéficier d'un espace d'intimité. De plus, en isolant l'espace de jour commun des chambres, la circulation est facilitée et chaque membre de la famille dispose d'une réelle intimité. La construction d'une maison à étage est déconseillée si l'un des membres de la famille souffre de problèmes de mobilité. Cependant, il est possible de prévoir un plan de maison à étage avec 3 chambres, dont une chambre et une salle de bain en rez-de-chaussée, si le terrain est suffisamment grand.

    La maison à étage est très recherchée par les acheteurs

    La maison à étage bénéficie d'un fort capital de revente. C'est un peu le rêve français. Elle est un produit recherché sur le marché de l'immobilier. Il est donc toujours possible de la revendre le moment venu et d'acheter une maison plus conforme à l'évolution de ses besoins.

    Quels sont les inconvénients d'une maison à étage ?

    La maison à étage suscite des interrogations. Elle est adaptée à un mode de vie familial. Mais reste-t-elle adaptée lorsque les enfants prennent leur autonomie et que les parents se retrouvent seuls ? De plus, son coût est-il supérieur à celui d'une maison de plain-pied ? Ces inconvénients de la maison à étage n'en sont pas réellement.

    La maison à étage peut-elle s'adapter à l'évolution de la structure familiale ?

    Le porteur d'un projet de construction d'une maison à étage est souvent jeune, en couple avec un ou plusieurs enfants ou projette d'en avoir. Mais que se passe-t-il quand les membres de la famille vieillissent et se retrouvent avec d'éventuelles difficultés de mobilité ? Ou lorsqu'un membre est atteint de problèmes de mobilité ? La présence de l'escalier est un inconvénient majeur susceptible de compliquer alors les déplacements.

    Cependant, des solutions existent pour rendre la maison habitable par rapport au vieillissement de ses occupants. Les maisons construites aujourd'hui sont prévues pour être adaptables aux personnes à mobilité réduite et plus généralement aux situations de handicap. De plus, les offres d'aménagement d'escalier à destination des personnes en perte de mobilité se sont multipliées ces dernières années, et il devient facile d'en équiper sa maison à moindre coût.

    La maison à étage a-t-elle un coût supérieur à celui d'une maison de plain-pied ?

    Tout dépend des prestations choisies par le porteur de projet. Globalement, le prix d'une maison à étage est identique à celui d'une maison de plain-pied. À titre d'exemple, il faudra prévoir un budget moyen de 170 000 euros1 pour une maison de 120 m2 avec 3 chambres. Mais le budget global de l'opération de construction d'une maison à étage est souvent moins élevé que celui d'une maison de plain-pied en raison du coût inférieur du terrain sur lequel elle est construite.

    Comment faire son choix parmi les plans de maison à étage ?

    Pour vous aider à faire votre choix, vous avez la possibilité de consulter des plans de maison à étage sur le site SeLoger construire. En comparant les différents plans mis à votre disposition, vous pourrez mieux définir vos besoins.

    Si des modèles de maison à étage retiennent votre attention, SeLoger construire vous permet de rentrer en contact avec des constructeurs de maisons qui proposent de vous accompagner. Ils vous conseilleront dans toutes vos démarches et vous pourrez vérifier ensemble si le modèle de plan de maison à étage sélectionné correspond pleinement à vos attentes.

    1 : Enquête EPTB réalisée par le ministère de la Transition écologique et solidaire publiée en octobre 2018 :Le prix des terrains à bâtir en 2017
    Ces articles peuvent vous intéresser
    Dessiner les plans de sa maison
    Maîtriser votre projet
    Dessiner les plans de sa maison soi-même ou avec un professionnel ?
    Consulter l'article
    Réglementations à connaitre
    Maîtriser votre projet
    Réglementations à connaitre avant de faire construire
    Consulter l'article
    Combien de temps dure la construction ?
    Maîtriser votre projet
    Combien de temps dure la construction d'une maison ?
    Consulter l'article